Gemeinde Weeze | Bebauungsplan Weeze Nr. 44b „Gocher Straße / Grafscherweg“

Gemeinde Weeze | Bebauungsplan Weeze Nr. 44b „Gocher Straße / Grafscherweg“ Kurz erklärt: Mit dem Bebauungsplan Weeze Nr. 44b wurden die planungsrechtlichen Voraussetzungen geschaffen, um die innerörtliche Fläche einer ehemaligen Gärtnerei in dringend benötigten Wohnraum zu entwickeln. Ziel war eine Innenentwicklung und Nachverdichtung, die sich städtebaulich in die bestehende Siedlung einfügt, dabei aber zugleich qualitätsvolle […]
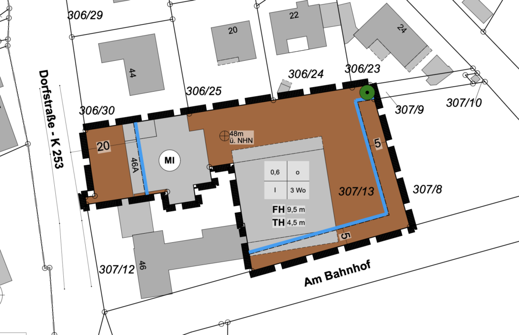
Gemeinde Visbek | Bebauungsplan Nr. 24 „Rechterfeld-Stäschlatt / Beim Bahnhof“ – 2. Änderung

Gemeinde Visbek | Bebauungsplan Nr. 24 „Rechterfeld-Stäschlatt / Beim Bahnhof“ – 2. Änderung Kurz erklärt: Die 2. Änderung des Bebauungsplans Nr. 24 ordnet ein Teilgebiet im Ortsteil Rechterfeld in ein Mischgebiet (MI) um, damit eine verträgliche Umnutzung des Grundstücks möglich wird. Das Verfahren wurde beschleunigt nach § 13a BauGB durchgeführt, wobei parallel der Flächennutzungsplan im Wege der […]
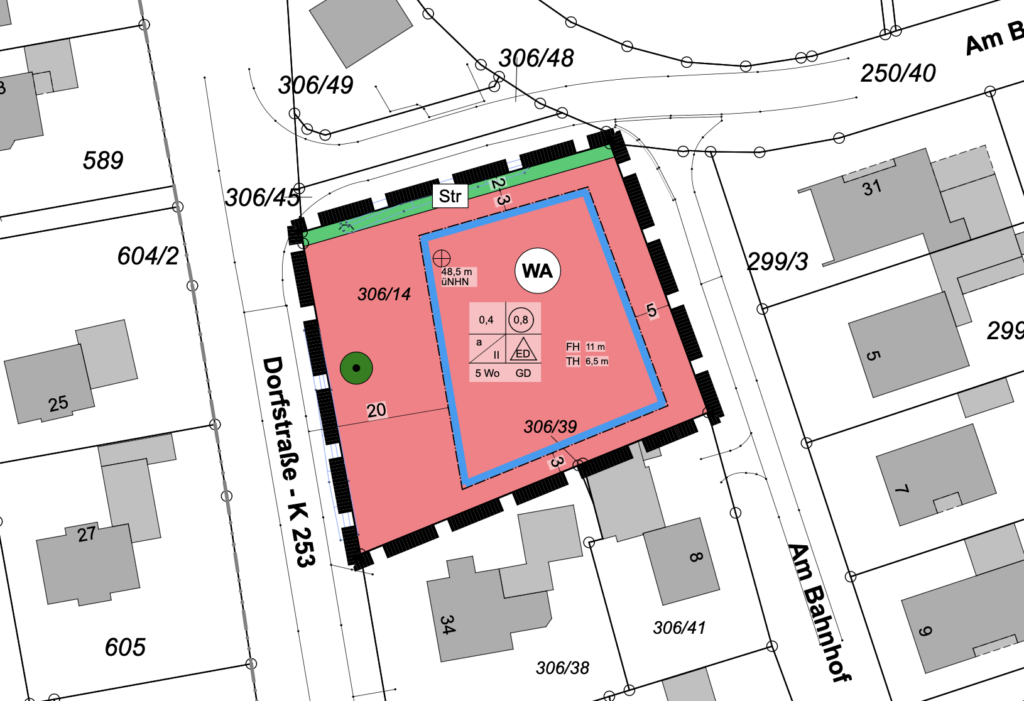
Gemeinde Visbek | Bebauungsplan Nr. 36 „Stäkamp“ – 5. Änderung

Gemeinde Visbek | Bebauungsplan Nr. 36 „Stäkamp“ – 5. Änderung Kurz erklärt: Die 5. Änderung des Bebauungsplanes Nr. 36 „Stäkamp“ schafft auf einem bislang unbebauten Grundstück planungsrechtliche Voraussetzungen für ortsverträgliches Wohnen. Die Gemeinde setzt damit Innenentwicklung um und ermöglicht Einzel- und Doppelhäuser in einem Allgemeinen Wohngebiet. Das Verfahren lief nach den Vorschriften des § 13a […]
Gemeinde Visbek | Machbarkeitsstudie Außenbereichssatzung

Gemeinde Visbek | Machbarkeitsstudie Außenbereichssatzung Kurz erklärt: Im Ortsteil Erlte besteht eine kleine Wohnsiedlung im Außenbereich. Die Gemeinde ließ prüfen, ob mit einer Außenbereichssatzung nach § 35 Abs. 6 BauGB zusätzliche Wohnbauvorhaben rechtssicher ermöglicht werden können oder ob alternativ eine Bauleitplanung erforderlich wäre. Ergebnis: Eine Satzung nur für den bereits bebauten Bereich erscheint rechtlich tragfähig. […]
Gemeinde Badbergen | Flächen für den Gemeinbedarf

Gemeinde Badbergen | Flächen für den Gemeinbedarf Projektbeschreibung Im Auftrag der Gemeinde Badbergen entstand mit dem Bebauungsplan Nr. 56 „Holdorfer Chaussee-Nord“ eine rechtskräftige städtebauliche Grundlage für die Entwicklung eines Gebiets mit vielfältiger Nutzung. Ziel war es, die baulichen und funktionalen Voraussetzungen für gemeinbedarfsorientierte Nutzungen zu schaffen – darunter Einrichtungen für kirchliche, soziale und kulturelle Zwecke. […]
Stadt Georgsmarienhütte | Allgemeines Wohngebiet

Stadt Georgsmarienhütte | Allgemeines Wohngebiet Anlass & Zielsetzung Die Stadt schafft planungsrechtliche Voraussetzungen für eine Innenentwicklung innerhalb einer bestehenden Siedlungslage. Anlass sind konkrete Bauabsichten auf einem bislang von Bebauung freizuhaltenden Grundstück. Die Erschließung erfolgt über die Straße Eschholz. Festgesetzt wird ein Allgemeines Wohngebiet (WA) mit an die Umgebung angepasstem Maß, um eine städtebaulich verträgliche Nachverdichtung […]
Gemeinde Wallenhorst | Gewerbegebiet

Gemeinde Wallenhorst | Gewerbegebiet Was war das Ziel des Bebauungsplanes Nr. 287? Die Gemeinde Wallenhorst wollte das bestehende Speditions- und Gewerbeareal an der Hansastraße rechtlich absichern und zukünftige Erweiterungen ermöglichen. Das bisher landwirtschaftlich genutzte Grundstück hat sich zu einem gewerblichen Betriebshof entwickelt, dessen Ausbau nicht mehr vom § 35 BauGB gedeckt ist. Der Bebauungsplan Nr. 287 „Westlich […]
X-Planung

X-Planung Der XPlan GML-Standard dient der digitalen Bereitstellung von Bauleitplänen in einem einheitlichen Format. Um bestehende Pläne in das XPlan GML-Format zu überführen, müssen diese zunächst digitalisiert und in ein georeferenziertes CAD- oder GIS-Format (z. B. DXF, DWG oder Shape) umgewandelt werden. Anschließend erfolgt die Modellierung der Planinhalte nach den Vorgaben des XPlanung-Datenmodells, wobei Bauflächen, Nutzungsarten […]